Kaufpreis

399.000 €

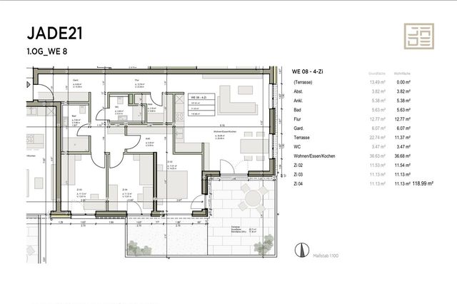
ca. 119,0 m²
Wohnfläche
4
Zimmer
ca. 5 m²
Nutzfläche

Vorhang auf für „Jade 21“! Neubau von 18 Luxus-Eigentumswohnungen in Erftstadt-Lechenich! 

Eigentumswohnung

Verkauft

Objekt-Nr: KO151NB8


Preis

Käuferprovision:

3 % vom Kaufpreis zzg. 19 % MwSt.

Kaufpreis:
399.000 €
Hausgeld:
357 €

Fläche

Wohnfläche:
ca. 119,0 m²
Zimmer:
4
Nutzfläche:
ca. 5 m²

Weitere Informationen

verfügbar ab:
05.2020
Zugang zur Wohnung:
Treppenhaus u. Aufzug

Beschreibung

Vorhang auf für „Jade 21“ – Wir bauen für Ihre Zukunft!

Das Bauprojekt „Jade 21“ fühlt sich schon heute der Zukunft verpflichtet. Bei dieser Immobilie werden die Maßstäbe der Architektur von heute neu definiert, um auch morgen noch allen Ansprüchen gerecht zu werden. Gehen Sie mit uns ein ganzes Stück weiter, als es die üblichen Neubauten heute machen. Wir erfüllen keine Standards, wir definieren diese vollkommen neu.

Mit dieser Immobilie setzen wir einen Trend und wollen nicht nur einem Folgen.

Das Objekt überzeugt durch eine außergewöhnlich moderne und elegante Architektur in monolithischer Bauweise kombiniert mit großzügigen Grundrissen. Es wird seinem Namen alle Ehre machen.

Großzügige Raumhöhen lassen die Zimmer mit Licht durchfluten und unterstreichen die Weitläufigkeit der Wohnungen. Elektrische Textilscreens sorgen für Ihren individuellen Sonnenschutz.

Die insgesamt 18 Wohnungen sind zwischen 57 und ca. 144 m² groß. Sie verfügen über zwei bis vier Zimmer mit sehr großen Terrassen, Dachterrassen oder auch eigene Gärten. Im Dachgeschoss befinden sich zwei außergewöhnliche Penthäuser.

Die ausgesprochen schöne Fassaden und Dachgestaltung sind ein weiteres Highlight.

In den Wohnungen ist ein wertiges Mehrschichtparkett verlegt. Für eine wohlige Wärme in allen Räumen sorgt die Fußbodenheizung, die umweltschonend und energieeffizient über eine Luft-Wasser-Wärmepumpe betrieben wird.

Die sehr luxuriös ausgestatteten Bäder mit z.B. ebenerdiger Dusche und Echtglasabtrennung lassen Sie bereits morgens strahlen.

Ob gemütliche 2-Zimmerwohnung oder praktisch geschnittene Paar- u. Familienwohnung. Hier ist für jeden was dabei! Das absolute Highlight stellen die Penthäuser da.

Selbstverständlich können Sie noch auf die Ausstattung Ihrer Wohnung Einfluss nehmen und die Wohnung ganz individuell nach Ihrem Geschmack ausstatten und gestalten.

Nicht unerwähnt darf die sehr moderne architektonische Gestaltung der Immobilie und der Gemeinschaftsbereiche bleiben. Ein außergewöhnliches und lichtdurchflutetes Treppenhaus empfängt die Bewohner und Besucher und verleiht der Immobilie einen äußerst repräsentativen Charakter.

Seien Sie dabei und verwirklichen Sie mit uns Ihren Wohntraum – Das ist „Jade 21“ IHR WOHNTRAUM

Vereinbaren Sie mit uns Ihr persönliches Beratungsgespräch, in dem wir Ihnen alle Details zu dieser Baumaßnahme ausführlich darstellen.

Lage

Lechenich ist der zweitgrößte Stadtteil von Erftstadt und hat seit mehr als 700 Jahren Stadtrechte. Sehenswert ist der alte Stadtkern mit Markt, Rathaus und den beiden Stadttoren. Lechenich hat ca. 11.800 Einwohner und verfügt über erstklassige Einkaufsmöglichkeiten, sehr gute ärztliche Versorgung und Freizeit- sowie Sportmöglichkeiten jeder Art. Sämtliche Arten von Schulen, Tennisplätze und Schwimmbad befinden sich am Ort.

Die Verkehrsanbindung ist gut. Es fahren genügend Busse, der Bahnhof Erftstadt und die Auffahrt der BAB A 1 bzw. A 61 sind in wenigen Minuten erreichbar.


Standort

Bonner Ring 21, 50374 Erftstadt–Lechenich


Galerie

Objektanfrage

*“ zeigt erforderliche Felder an

Einverständniserklärung zur Kontaktaufnahme*

Ähnliche Immobilien